0
Réf : 923
Nouveauté

MAISON DE VILLAGE DE 163M2 SUR LES HAUTEURS DE BONNE

Bonne (74380)
470 000 €

A propos de ce bien

EXCLUSIVITÉ : Dans le secteur historique et privilégié du Haut de Bonne , découvrez cette maison au charme savoyard , bénéficiant d'une rénovation complète sur la partie extérieure : façade, huisseries, toiture et isolation ont été entièrement refaites, offrant un cadre de vie sain et durable.

Édifiée sur une parcelle de 506 m² exposée plein sud , elle profite d'un joli jardin et d'une vue dégagée sur les collines environnantes , dans un environnement calme et recherché.

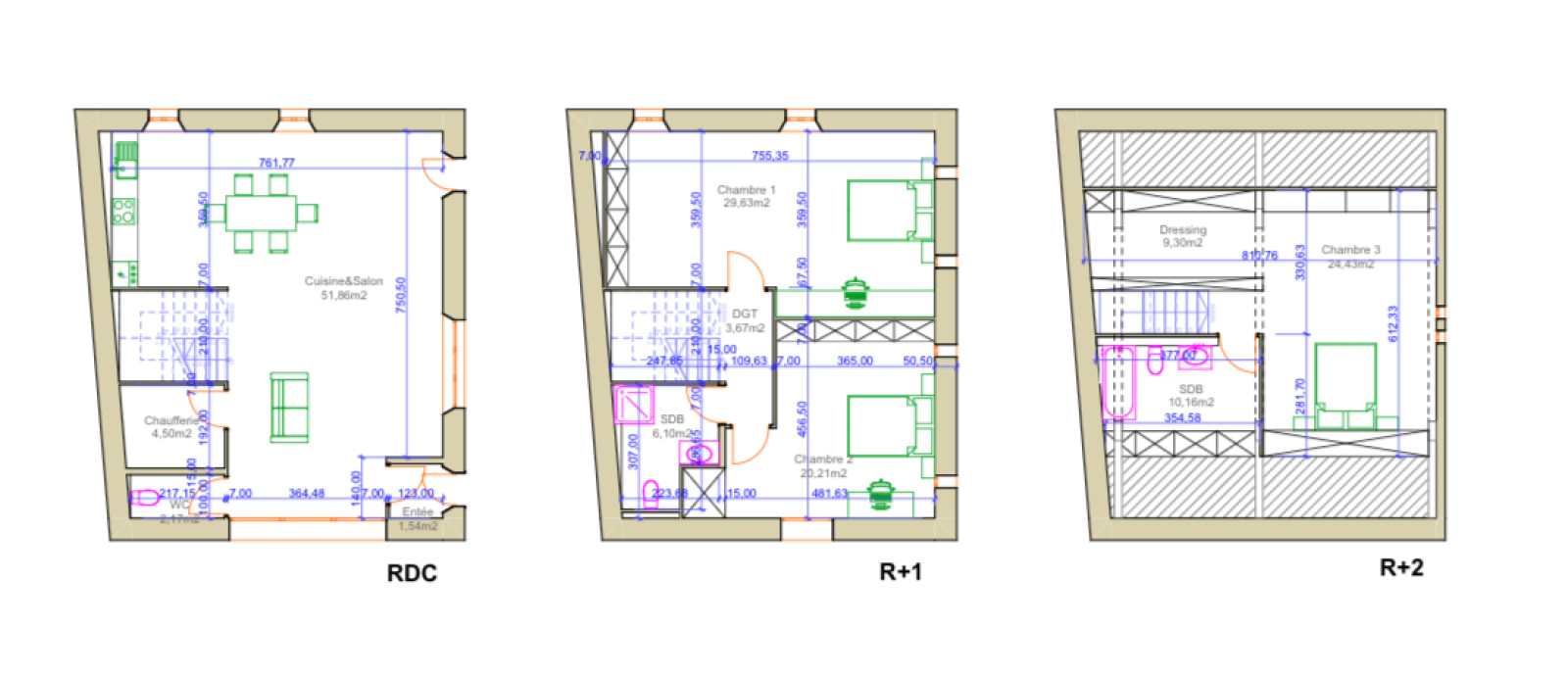
D'une surface d'environ 160 m² répartis sur trois niveaux , la maison se compose comme suit :

Rez-de-chaussée : espace de vie principal avec salon lumineux et cuisine ouverte donnant accès direct au jardin, ainsi qu'un coin chaufferie/local technique et un WC indépendant .

Premier étage : deux chambres spacieuses et une salle de bain .

Dernier étage : combles aménagés offrant une troisième chambre avec salle de bain et WC privatifs .

La maison a été configurée suivant les plans visibles sur les photos jointes , offrant un aménagement fonctionnel et cohérent sur l'ensemble des niveaux.

À noter : certains travaux intérieurs restent à terminer , la maison est donc vendue dans l'état actuel .

Une vente clé en main avec les travaux achevés peut également être envisagée selon le projet de l'acquéreur.

Places de stationnement privatives ,

Aucun sous-sol ,

Proximité immédiate du centre de Bonne , des écoles et des commerces .

Une belle opportunité d'acquérir une maison de caractère, rénovée extérieurement, au cœur d'un cadre privilégié et verdoyant. Vous pouvez contacter Jean-Marie Dunand pour organiser un rendez-vous de visite au 06.19.12.82.43

Descriptif du bien

TRAD_PAMPERO_Caracteristique Valeurs
Code postal 74380
Surface habitable (m²) 163 m²
surface terrain 506 m²
Surface loi Carrez (m²) 163 m²
Nombre de chambre(s) 3
Nombre de pièces 4
Nombre de niveaux 3
Vue Montagnes et Forêts
TRAD_PAMPERO_Caracteristique Valeurs
Nb de salle de bains 2
Cuisine Américaine
Mode de chauffage Pompe à chaleur
Type de chauffage TRAD_TYPE_CHAUFF_CHAUDIERE
Format de chauffage Individuel
Terrasse OUI
Nombre de parking 2
Exposition Sud-Ouest
TRAD_PAMPERO_Caracteristique Valeurs
statut du syndic pas de procédure en cours
TRAD_PAMPERO_Caracteristique Valeurs
Prix de vente honoraires TTC inclus 470 000 €
DPE GES
Ce bien vous intéresse ?
Fieldset par défaut
Fieldset par défaut
Validation

* Champs obligatoires

Contacter l'agence
Validation
Les informations recueillies sur ce formulaire sont enregistrées dans un fichier informatisé par La Boite Immo agissant comme Sous-traitant du traitement pour la gestion de la clientèle/prospects de l'Agence / du Réseau qui reste Responsable du Traitement de vos Données personnelles. La base légale du traitement repose sur l'intérêt légitime de l'Agence / du Réseau. Elles sont conservées jusqu'à demande de suppression et sont destinées à l'Agence / au Réseau. Conformément à la loi « informatique et libertés », vous disposez des droits d’accès, de rectification, d’effacement, d’opposition, de limitation et de portabilité de vos données. Vous pouvez retirer votre consentement à tout moment en contactant directement l’Agence / Le Réseau. Consultez le site https://cnil.fr/fr pour plus d’informations sur vos droits. Si vous estimez, après avoir contacté l'Agence / le Réseau, que vos droits « Informatique et Libertés » ne sont pas respectés, vous pouvez adresser une réclamation à la CNIL. Nous vous informons de l’existence de la liste d'opposition au démarchage téléphonique « Bloctel », sur laquelle vous pouvez vous inscrire ici : https://www.bloctel.gouv.fr Dans le cadre de la protection des Données personnelles, nous vous invitons à ne pas inscrire de Données sensibles dans le champ de saisie libre.
Ce site est protégé par reCAPTCHA, les Politiques de Confidentialité et les Conditions d'Utilisation de Google s'appliquent.